Sany Single Drum Roller SSR220C-8H Overall vehicle schematic diagram PDF
[2019]Presented the PDF Manual with illustrations, diagrams, and schemes for the Sany Single Drum Roller SSR220C-8H model. In this electronic guide, you can find much important and useful information for good work with this equipment.
Table of Contents
1. Electrical Schematic Diagram
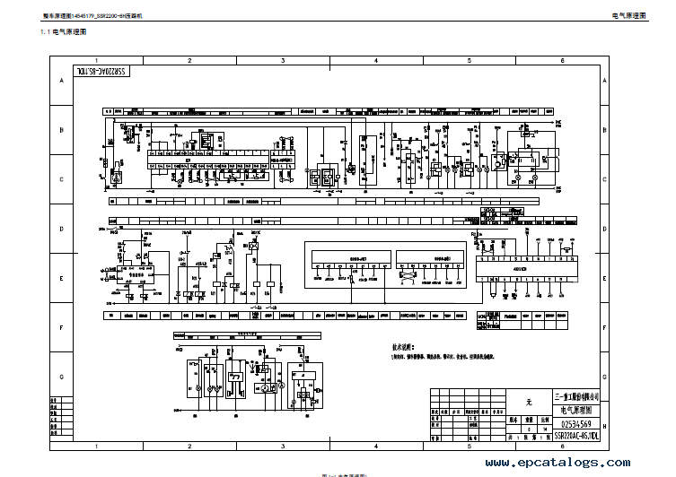
1.1 Electrical Schematic Diagram
1.2 Electrical Schematic Diagram
2. Hydraulic Schematic Diagram
2.1 Hydraulic Schematic Diagram
1. Electrical Schematic Diagram
1.1 Electrical Schematic Diagram
1.2 Electrical Schematic Diagram
It is very important to pay attention and read the safety rules, notes, and recommendations. This will help you avoid unforeseen technical breakdowns, damage, and serious injuries.
Features of the Manual
Format: PDF
Language: Chinese, English
Pages: 11
Compatible with all versions of Windows, Mac, Linux, iPhone, iPad, and Android
The factory file includes a setting section, step-by-step instructions, technical data, information about safety, detailed diagrams, schemes, many illustrations, and tables.
FAQs
How do I download the manual?
If you decide to buy this Sany product, just click on the button, and after this procedure, you will receive this PDF file emailed to your PayPal email address within 5-10 minutes of your purchase.
Is the manual printable?
Yes, all pages are printable.
Still have questions?
If you may have, you can ask us, and we will help you.
Screenshots for Sany Single Drum Roller SSR220C-8H Overall vehicle schematic diagram PDF:
Our company provides for sale original spare part catalogs, workshop manuals, diagnostic software for all models of engines, cars, trucks, buses, forklifts, tractors, harvesters, cranes, buldozers, generators, construction and agricultural machines, motorcycles. To purchase a catalog online, please add the product to your cart, fill in the contact form online. Our managers proceed your order the same day.
Related products for Sany Single Drum Roller SSR220C-8H Overall vehicle schematic diagram PDF:
Sany Wheel Loader SW075, SW085 Operation and Maintenance Manual PDF
The factory file includes safety rules, operation instructions, maintenance information, specifications, troubleshooting, many different tables.
39$
[]
|
Sany SY500C1I3KH Hydraulic Excavаtor body Parts Catalog PDF
The factory file consists of sections about technical data, accessories, fittings, electrical system assembly, diagrams, parts instructions.
39$
[]
|
Sany Tracked Hydraulic Excavator SY485H Service Manual PDF
The factory file consists of sections about descriptions, technical data, specifications, hydraulic and electrical diagrams.
39$
[2016]
|
Sany Engline Catalog Number SY485C1I3KHE01 Parts Manual PDF
The factory file covers sections about engine information, settings, a list of parts, many illustrations with descriptions, diagrams, schemes, and tables.
39$
[]
|




