McCormick MC Series Tractors Service Manual SM 8-11102 PDF
[03/2001]Service manual includes technical service information, detailed pictures and diagrams, technical specifications, special repair instructions, installation and dismantling, and other supporting information for McCormick Tractors MC Series.
Service manual allows searching for the necessary service information, guidelines for assembly and installation, maintenance and repairing.
This service manual comes in PDF format, includes 2289 pages. All pages are printable. We recommend to use Adobe PDF Reader, to be sure all images / graphics will display correctly.
Models covered:
MC80,
MC90,
MC100,
MC115.
CONTENTS:
- 1 GENERAL
- Safety Rules, General Information and Torque Specifications
- General Specifications and Torques
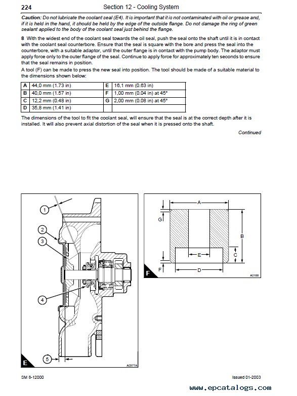
- 2 ENGINE
- Engine Removal
- NOTE: For Service and Overhaul procedures refer to your Engine Service Manual SM 8-10041
- 3 FUEL SYSTEM
- Fuel Tank Removal and Servicing
- NOTE: For Service and Overhaul procedures refer to your Engine Service Manual SM 8-10041
- 4 ELECTRICAL
- Electrical Schematics
- Instrument Cluster Programming
- Battery Servicing and Testing
- 5 STEERING
- Steering Column and Steering Hand Pump
- Steering Hand Pump
- 6 TRANSMISSION
- HOW IT WORKS
- Separating the Tractor (Engine and Speed Transmission) and Torque Dampener
- Separating the Speed and Range Transmission
- Powershift Transmission Servicing
- Range Transmission Servicing
- Powershift Valve
- Shuttle Valve
- Synchronizer Creep Transmission
- Differential and Differential Lock
- MFD Output Shaft and Bearing
- Rear Axles and Planetaries
- PTO - Reversible and Shiftable
- 20.14 MFD Front Axle
- 20.19 and 20. 25 MFD Front Axle
- Independent Front Suspension Axle (20.19 and 20. 25 Axle)
- PTO Front Drive Shaft and Hydraulic Pump Drive Gear
- 7 BRAKES
- Service Brake
- Hydraulic Trailer Brake Valve
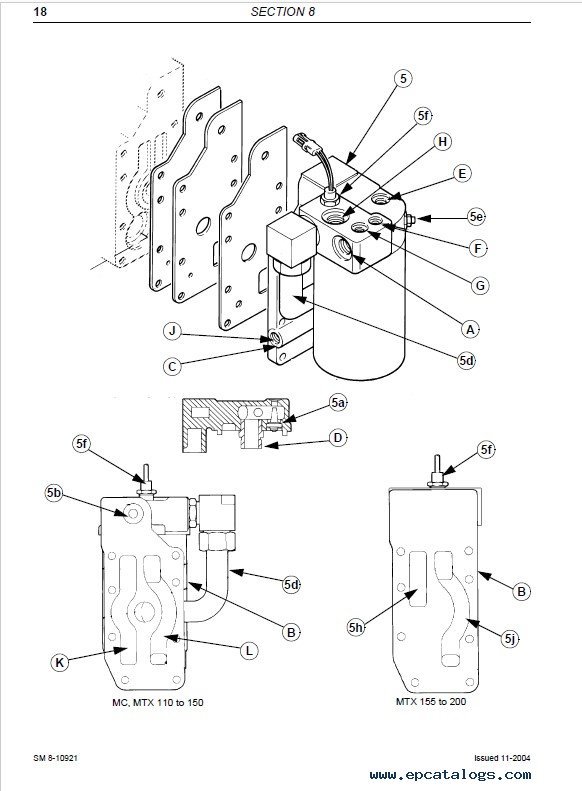
- 8 HYDRAULICS
- HOW IT WORKS
- Hydraulic Troubleshooting and Schematic (MC Series Tractors up to P.I.N JJE2020415)
- Hydraulic Troubleshooting and Schematic (MC Series Tractors P.I.N JJE2020416 and After)
- Charge Lubrication Pump
- Hydraulic Valves
- Remote Valves
- 9 CHASSIS AND MOUNTED EQUIPMENT
- Pedal, Lever Adjustments
- Air Conditioner Troubleshooting (Visual and Operating)
- Air Conditioner Troubleshooting (Gauges and Testing)
- Air Conditioner System Components Servicing
- Cab Removal and Cab Roof Panel Tilting
- 10 CONTROLLER SYSTEMS
- Hitch/MFD/Differential Lock Controller - Calibration, Error Codes
- Troubleshooting and Schematics
- Independent Front Suspension Axle Controller
- Calibration, Error Codes, Troubleshooting and Schematics
- Speed Sequencer Controller, F/N/R and powershift - Calibration, Error Codes Troubleshooting and Schematics (For Tractors With Speed Sequencer)
- PTO Controller (For Tractors With Speed Sequencer), F/N/R Controller and Powershift (For Tractors Without Speed Sequencer) - Configuration, Error Codes, Troubleshooting and Schematics
- Hitch and PTO Controller Programming
Screenshots for McCormick MC Series Tractors Service Manual SM 8-11102 PDF:
Our company provides for sale original spare part catalogs, workshop manuals, diagnostic software for all models of engines, cars, trucks, buses, forklifts, tractors, harvesters, cranes, buldozers, generators, construction and agricultural machines, motorcycles. To purchase a catalog online, please add the product to your cart, fill in the contact form online. Our managers proceed your order the same day.
Related products for McCormick MC Series Tractors Service Manual SM 8-11102 PDF:
McCormick Newton 8.0 Parts Catalog 2015
This program is a detailed parts catalog that includes parts and accessories information for McCormick.
150$
[05/2015]
|
McCormick ZTX Series Tractors Service Manual SM 8-12602 PDF
PDF service manual includes technical service information, step by step instructions for McCormick Tractors ZTX series.
50$
[03/2001]
|
McCormick XTX145, XTX165, XTX185, XTX200, XTX215 Tractors Service/Diagnostic Manual (SM 8-15002) PDF
PDF manual contains service and diagnostic information, service instructions, specifications, schematics and diagrams for tractors McCromick XTX series.
40$
[03/2001]
|
McCormick Landini F 60-70-80 F 75-85-95-105 GE-XL Tractors Series F Training Manual PDF
PDF training manual is to provide clear instructions on how to repair and adjust Series F series tractors.
50$
[02/2004]
|




