Kobelco SK150 (LC) IV and ED180 (LC) Hydraulic Excavator PDF Set of Manuals
[04/2002]Factory information for thу SK150 (LC) IV and ED180 (LC) model excavator is contents into two files, which complement each other and include detailed and high-quality diagrams, charts, and pictures that help to carry out all the maintenance and repair procedures.
Service manuals were written not only to support the professional activities of a technical specialist but primarily for the owner. So that he possessed basic knowledge and skills and could prevent global problems with his excavator. Hence anyone interested in learning more about technology and understanding the function and interaction of the system of this equipment will also find their questions answered.
The factory manual is designed to work on a personal computer with Windows & Mac. This manual is a file PDF. To work with a set of manuals you should use Adobe PDF Reader. With the help of service manual users can quickly and easily set up work excavators Kobelco, troubleshoot and solve any problems that arise.
Models:
SK150 (LC) IV
ED180 (LC)
CONTENTS:
1. Specifications
Safety
Transportation
Specifications
Attachment Dimensions
Tools
Standard Maintenance Time Table
2. Maintenance
Measuring and Adjusting Pressures
Cylinder and Motor Cycle Times
Mechatronics
3. System
Travel System - 150
Travel System - 180
Attachment Disassembly
Mechatro Control System
Electric System - 150
Electric System - 180
4. Disassembly
5. Troubleshooting
6. Components
Hydraulic pump
Control valve
Other valves
Hydraulic motor
Swivel joint
Hydraulic cylinder
Reduction unit (swing)
7. Miscellaneous
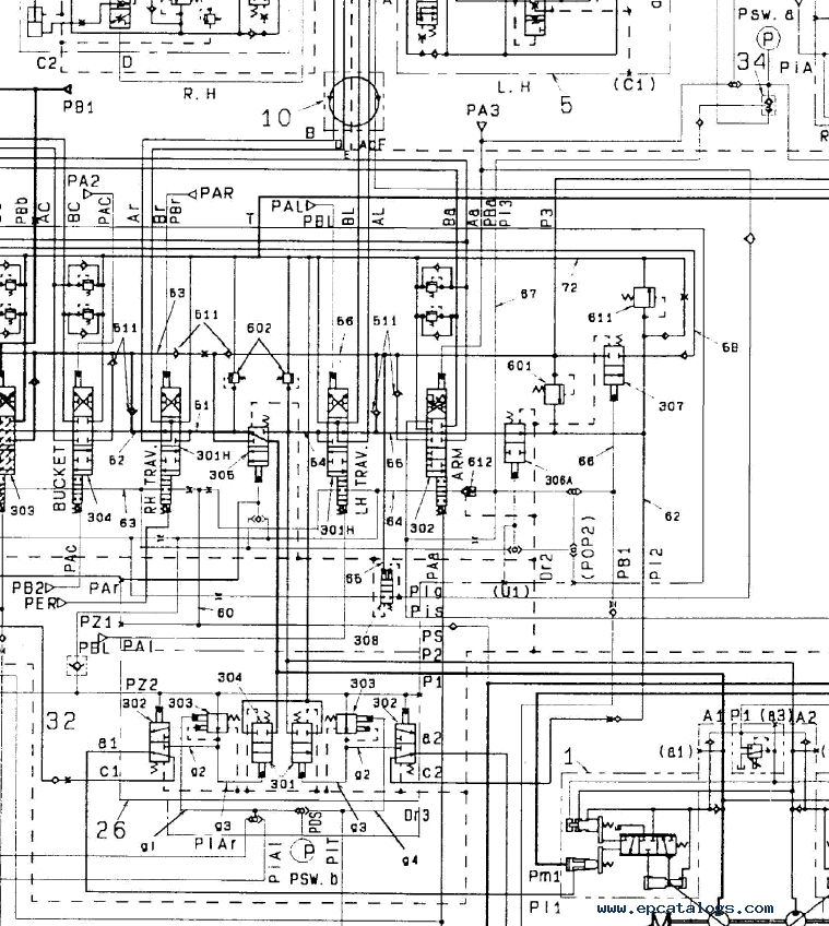
Screenshots for Kobelco SK150 (LC) IV and ED180 (LC) Hydraulic Excavator PDF Set of Manuals:
Our company provides for sale original spare part catalogs, workshop manuals, diagnostic software for all models of engines, cars, trucks, buses, forklifts, tractors, harvesters, cranes, buldozers, generators, construction and agricultural machines, motorcycles. To purchase a catalog online, please add the product to your cart, fill in the contact form online. Our managers proceed your order the same day.
Related products for Kobelco SK150 (LC) IV and ED180 (LC) Hydraulic Excavator PDF Set of Manuals:
Kobelco Parts Catalog All Regions 2015
Parts catalog includes detailed parts and accessories information for crawler excavators, backhoe loaders, wheel loaders, mini crawler excavators Kobelco.
250$
[09/2014]
|
Kobelco SK200-8 SK210LC-8 Hydraulic Excavator Shop Manual PDF
Shop manual contains full descriptions of all repair procedures, installation instructions, maintenance instructions for hydraulic excavators Kobelco.
49$
[08/2006]
|
Kobelco Mark-III Hydraulic Excavator Serviceman Handbook PDF
This PDF handbook contains information about the service, repair and troubleshoot of hydraulic excavators Kobelco.
40$
[]
|
New Holland Kobelco E50.2SR Сrawler Excavator Parts Catalog PDF
PDF parts catalog includes information about parts and accessories for mini crawler excavators New Holland Kobelco.
40$
[]
|





