Hyster Class 5 For G019 (H300HD, H330HD, H360HD, H360HD-12EC) Trucks PDF Manual
[]Hyster Internal Combustion Engine Trucks H300HD Series Repair Manual
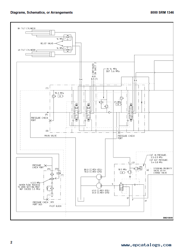
This manual is an official dealer document that provides comprehensive repair and service information, including fitting instructions and technical specifications for the Hyster internal combustion engine trucks of the H300HD series.
Featuring detailed illustrations and diagrams, this manual offers an in-depth understanding of all the systems within Hyster trucks. With these resources, you can identify the exact installation points for components, ensuring precision and accuracy during repairs and maintenance.
Designed to assist in efficient troubleshooting, this manual is a valuable tool for quickly resolving issues. The guide is available in PDF format, and for the best experience, we recommend using Adobe PDF Reader to ensure that all images and graphics are displayed correctly.
Covered Models
- H300HD
- H330HD
- H360HD
- H360HD-12EC
Manual Contents
- Steering Axle
- Differential
- Tilt Cylinders
- Metric and Inch (SAE) Fasteners
- Steering System
- Dry Brake System
- Hydraulic System
- Planetary Drive Axle
- Main Control Valve
- Wet Brake System
- Empty Container Handling Attachment
- Masts and Carriages
- Instrument Panel Indicators and Senders
- Cummins Diesel/LPG Engine Fault Code Guide
- Assembly Guide
- Periodic Maintenance
- Diagrams
- Capacities and Specifications
- Frame
- Multiple Aligned Cooling System
- Electrical System
- Transmission
- Operator's Cab
- Etc.
Benefits of Using This Manual
By using this repair manual, you can:
- Ensure proper maintenance and repair of your Hyster truck.
- Accurately identify components and installation details.
- Minimize downtime by quickly troubleshooting issues.
Screenshots for Hyster Class 5 For G019 (H300HD, H330HD, H360HD, H360HD-12EC) Trucks PDF Manual:
Our company provides for sale original spare part catalogs, workshop manuals, diagnostic software for all models of engines, cars, trucks, buses, forklifts, tractors, harvesters, cranes, buldozers, generators, construction and agricultural machines, motorcycles. To purchase a catalog online, please add the product to your cart, fill in the contact form online. Our managers proceed your order the same day.





